
| 型號 | BST-06 | BST-50 |
|---|---|---|
| 進料容量 | 0.3-0.5立方/小時 | 10-15立方/小時 |
| 主爐尺寸(米) | 直徑0.82米*長11.2米 | 直徑2米*長14.26米 |
| 占地(長*寬*高,標準配置 | 25米*15米*8米 | 35米*18米*9米 |
| 設備重量(標準配置) | 21噸 | 49噸 |
| 耗能(標準配置) | 153千瓦/時*0.7 | 191千瓦/時*0.7 |
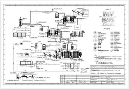
| 工藝方式 | 連續式s | |
| 進料要求 | 尺寸: ≤20mm; 含水率: ≤15%; 具有流動性 | |
| 結構 | 雙筒雙爐膛 | |
| 轉速 | 1-9轉/分 | |
| 控制方式 | PLC 控制 | |
| 主爐材質 | 不銹鋼 304 | |
| 工作壓力 | 微負壓 | |
| 燃料 | 柴油、天然氣、液化石油氣、生物質等。 | |
| 加熱方式 | 直熱式 | |
| 噪音(分貝) | ≤80 | |
| 冷卻方式 | 循環水冷卻 | |
| 傳動方式 | 外部齒輪傳動 | |




